服務熱線
021-33617555
全國服務熱線:
021-33617555
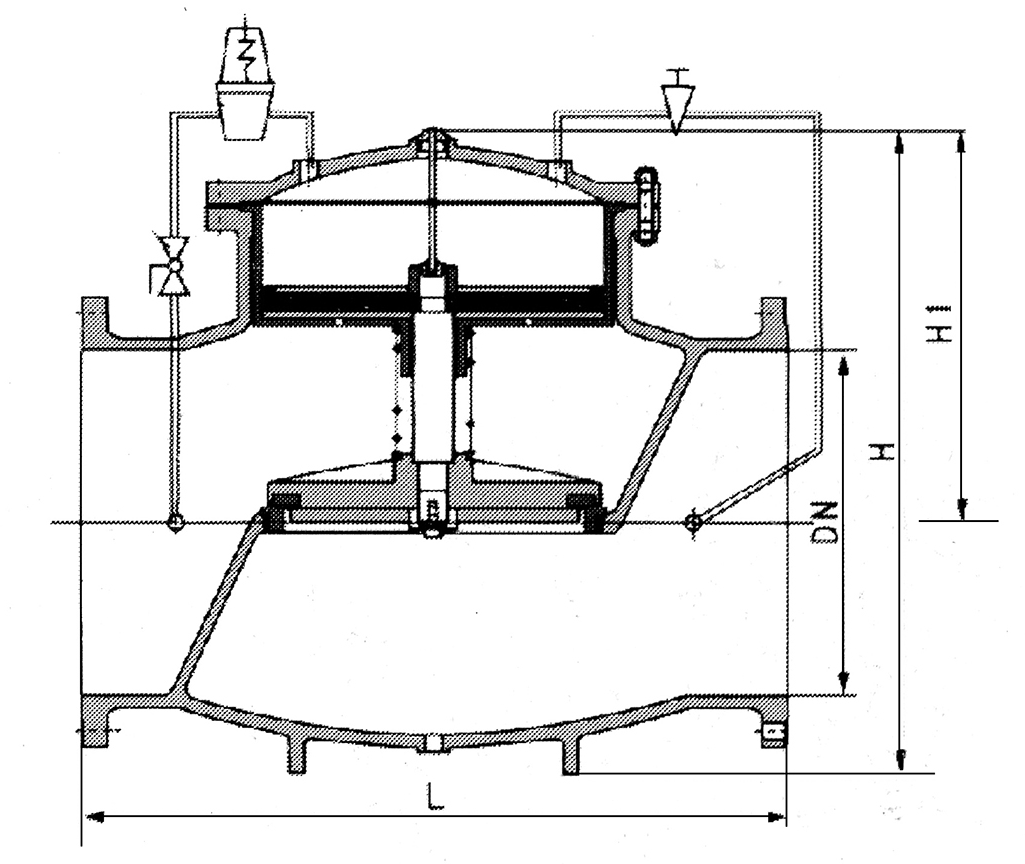
SJ200X水利減壓閥:結構及用途Structure and purpose
該閥用于生活供水和消防供水并聯供水系統中,正常情況供生活用水,當火災發生時消防用水時,閥門自動關閉生活用水,確保足夠的消防用水。當消防停止用水時壓力減少閥門自動恢復生活用水,該閥使系統無須另設專門的消防單獨供水管網,大大地節省了工程建設成本和日常的用水量。該閥控制靈敏、安全可靠、調試簡單、使用壽命長。
SJ200X減壓閥能控制主閥的固定出口壓力,不因主閥上游進口壓力變化而改變,亦不因主閥下游出口用水量變化而改變其出口壓力。
主要外形和連接尺寸
| DN | 20 | 25 | 32 | 40 | 50 | 65 | 80 | 100 | 125 | 150 | 200 | 250 | 300 | 350 | 400 | 450 |
| L | 150 | 160 | 180 | 200 | 203 | 216 | 241 | 292 | 330 | 356 | 495 | 622 | 698 | 787 | 914 | 978 |
| H1 | 179 | 179 | 179 | 210 | 210 | 215 | 245 | 305 | 365 | 415 | 510 | 560 | 658 | 696 | 735 | 735 |
| H | 342 | 342 | 342 | 395 | 395 | 405 | 430 | 510 | 560 | 585 | 675 | 730 | 760 | 840 | 910 | 910 |



